Ledig fra: Efter aftale

Fantastisk bolig i smukke omgivelser

Store Kongensgade 118, 1. tv., 1264 København K

Om lejemålet

Ejendom Store Kongensgade 118 – Hammerensgade 2
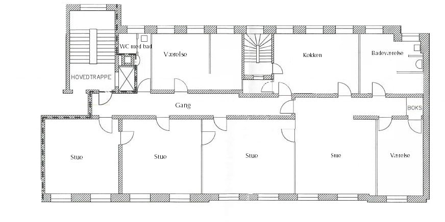
Værelser 6
Størrelse 286 m2
Ledig fra Efter aftale
Energimærke C
Leje 46.900 kr. / måned
Varme a conto 2.500 kr. / måned
Depositum 140.700 kr.
Forudbetalt leje 140.700 kr.
Indflytningspris 330.800 kr.

Interesseret?

Kontakt os for fremvisning eller spørgsmål

Henriette Tetsche

Lejemålet

Denne rummelige og stilfulde herskabslejlighed på Store Kongensgade, er noget helt særligt. Med sine 286 m² fordelt på seks værelser, herunder flere smukke stuer, er boligen et perfekt valg for dem, der ønsker plads, elegance og en unik beliggenhed midt i København. Lejlighedens master bedroom er indrettet med et luksuriøst walk-in-closet, der gør det nemt at organisere garderoben. Badefaciliteterne er også i top med et stort, moderne badeværelse, der rummer både badekar og en stor bruseniche. Derudover er der et flot gæstebadeværelse, som tilsammen sikrer både funktionalitet og komfort i hverdagen. Køkkenet er en drøm og fremstår utrolig elegant. Det blev totalmoderniseret i 2022 med eksklusive løsninger fra Vipp og er i en klasse for sig selv. Fra lejlighedens altan, som vender mod gården, kan man nyde en rolig stund væk fra byens puls. Udsigten fra boligen er en historie i sig selv. Med direkte kig til de ikoniske gule bygninger i Nyboder kan man opleve et af Københavns mest historiske kvarterer hver eneste dag. Denne herskabslejlighed forener klassisk charme og moderne luksus i hjertet af byen.

Ejendommen

Ved indgangen til Københavns indre by møder du den flotte bebyggelse. Den blev opført i 1927, men fremstår i dag fortsat i meget velholdt stand efter en grundig renovering i forbindelse med M. Goldschmidt Ejendommes overtagelse af ejendommen i 2010.

Området

Med indkøbsmuligheder, gode spisesteder og Østerport Station lige rundt om hjørnet er beliggenheden attraktiv for både erhvervslejere og beboere, som alle får glæde af de mange forskellige muligheder. Ejendommen er beliggende i gåafstand til det historiske Kastellet, Marmorkirken og dens metrostation, Kongens Nytorv og meget mere.

Beliggenhed

Nærområdet

Vuggestue
400 m
Børnehave
400 m
Skole
400 m
Indkøb
200 m
Legeplads
600 m
Tog
600 m
Bus
200 m
Metro
400 m

Interesseret?

Kontakt os for fremvisning eller spørgsmål

Henriette Tetsche

Din besked er sendt

Tak for din henvendelse. Vi vender tilbage til dig hurtigst muligt.